鋼襯塑立式儲罐亦稱龜甲襯裏立式儲罐(龜甲襯裏—鋼、網(wǎng)、塑三合一)是鋼塑複合係(xì)列產品(pǐn)的精華。它采用特殊滾塑(sù)成型工(gōng)藝將鋼(gāng)網焊接於鋼體(tǐ)表麵,以純(chún)聚乙(yǐ)烯為原料,采用滾塑(sù)工藝(yì)將鋼板、鋼網(龜甲)與聚(jù)乙烯結合成一(yī)體。

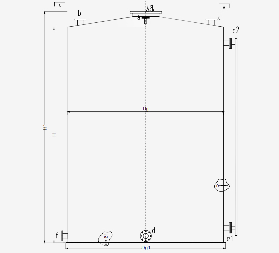
| 公稱容積(M³) | 外形尺寸 | 管接口法蘭規格(DN) | ||||||||||||
| Dg | Dg1 | H | H1 | δ | δ1 | a | b | c | d | e1e2 | f | 人孔 | ||
| 0.5 | 800 | 960 | 1000 | 1300 | 12 | 14 | 40 | 25 | 25 | 40 | 20 | 40 | / | |
| 1 | 1000 | 1160 | 1300 | 1630 | 12 | 14 | 50 | 25 | 25 | 50 | 20 | 50 | / | |
| 2 | 1200 | 1360 | 1800 | 2180 | 12 | 14 | 50 | 32 | 32 | 50 | 20 | 50 | 400 | |
| 3 | 1400 | 1560 | 2000 | 2430 | 14 | 15 | 50 | 40 | 40 | 50 | 20 | 50 | 400 | |
| 4 | 1600 | 1760 | 2000 | 2480 | 14 | 15 | 65 | 50 | 40 | 50 | 20 | 65 | 400 | |
| 5 | 1600 | 1760 | 2500 | 2980 | 14 | 15 | 65 | 50 | 40 | 50 | 20 | 65 | 400 | |
| 6 | 1800 | 1960 | 2300 | 2830 | 15 | 16 | 65 | 50 | 40 | 50 | 20 | 65 | 400 | |
| 8 | 1800 | 1960 | 3200 | 3730 | 15 | 16 | 80 | 65 | 50 | 80 | 20 | 80 | 400 | |
| 10 | 2000 | 2160 | 3200 | 3780 | 15 | 18 | 80 | 65 | 50 | 80 | 20 | 80 | 400 | |
| 12 | 2200 | 2360 | 3200 | 3830 | 15 | 18 | 80 | 65 | 50 | 80 | 20 | 80 | 400 | |
| 15 | 2200 | 2360 | 3900 | 4530 | 16 | 18 | 100 | 80 | 65 | 100 | 20 | 100 | 400 | |
| 20 | 2400 | 2600 | 4500 | 5180 | 16 | 18 | 100 | 80 | 65 | 100 | 20 | 100 | 500 | |
| 25 | 2600 | 2800 | 4600 | 5330 | 18 | 20 | 100 | 80 | 65 | 100 | 20 | 100 | 500 | |
| 30 | 2800 | 3000 | 4900 | 5680 | 18 | 22 | 100 | 80 | 80 | 100 | 20 | 100 | 500 | |
| 35 | 2800 | 3000 | 5700 | 6480 | 20 | 24 | 100 | 80 | 80 | 100 | 20 | 100 | 500 | |
| 40 | 2800 | 3000 | 6500 | 7280 | 20 | 25 | 100 | 80 | 80 | 100 | 20 | 100 | 500 | |
| 45 | 2800 | 3000 | 7300 | 8080 | 22 | 25 | 100 | 80 | 80 | 100 | 20 | 100 | 500 | |
| 50 | 3000 | 3200 | 7100 | 7930 | 25 | 30 | 100 | 80 | 80 | 100 | 20 | 100 | 500 | |
| 55 | 3000 | 3200 | 7800 | 8630 | 25 | 30 | 100 | 80 | 80 | 100 | 20 | 100 | 500 | |
| 60 | 3200 | 3400 | 7500 | 8380 | 25 | 30 | 100 | 80 | 80 | 100 | 20 | 100 | 500 | |
| 注:1、以上參數僅供參考,具體規格(gé)根據用戶需要製作;2、80、100、150、200立方儲罐另行設計製(zhì)造。 | ||||||||||||||




河南91视频免费观看(yuán)為您提供聚乙烯防腐(fǔ)容器(qì)、聚丙烯防腐容器、鋼襯塑防腐容器、鋼襯四氟防腐容器、四氟管道管件的選購和解決方案;您可以致電全國統一服務熱線:18567623999、銷售電話:18567623999,進行產品谘詢或來(lái)訪預約,我們將竭誠為您服(fú)務!